首安技術資料
聯系我們
- 聯系人:郭經理
- 傳真:010-69552656
- 電話:400-0346-119
- 電話:010-57113119
- 郵箱:506665119@qq.com
- 地址:北京通州區新華北路117號
首安SL-M710可燃氣體報警控制器
時間:2018-10-30 11:51:47 品牌: 首安
![[!--oldtitle--]](/d/file/baojingshebei/2018-10-30/fd8c85e15eb078af5c474f23a6175e9a.jpg)
一、SL-M710可燃氣體報警控制器概述
SL-M710型可燃氣體報警控制器是專門為工業場所設計的產品,SL-M710可以連接多路可燃氣體探測器,同時顯示多路探測器所在區域的可燃氣體濃度,還可以在控制器上為任何一路探測器設置兩個報警閾值(低警和高警),從而實現分級報警和分級控制,當被監視區域的燃氣濃度達到閾值低警時,對應的區域的低警指示燈發出紅光,低警繼電器動作;當達到閾值高警時,對應的高警指示燈發光,高警繼電器動作。
SL-M710可燃氣體報警器每通道裝有一塊128×64點陣OLED液晶指示器,在正常狀態下,用于實時顯示各個區域的可燃氣體濃度;在報警狀態下,用于顯示報警地址和報警級別;在故障狀態下,用于顯示故障類型和故障發生部位;無論在正常、報警或故障狀態,液晶顯示器的-下面一行,固定顯示被保護區域測試到的可燃氣體-高濃度。
二、SL-M710氣體報警控制儀技術參數
| 執行標準 | GB16808-2008可燃氣體報警控制器 |
| 主電 | 220VAC(+10%、-15%) |
| 備電 | 2×12VDC 20Ah 鉛酸電池 |
| 功耗 | 整機單機功耗≤15W |
| 探測器接口方式 | 2/3線 4-20mA電流環 |
| 報警級別 | 低限報警、高限報警 |
| 系統容量 | 16回路,每回路連接1個可燃氣體探測器 |
| 信息顯示 | 128×64點陣OLED液晶顯示屏(報警信息、濃度信息、故障信息) |
| 狀態顯示 | LED 指示燈 |
| 報警顯示 | LED(各通道低限報警、高限報警) |
| 歷史記錄 | 內置存儲器,可以記錄報警、故障、操作記錄、聯動事件、監管事件各1000條 |
| 總繼電器輸出 | 低限報警繼電器、高限報警繼電器、故障繼電器 |
| 通訊接口 | Modbus(RS 485),Canbus |
| 繼電器觸點容量 | 3A /30 VDC |
| 聲響 | 壓電陶瓷揚聲器,三種聲響(低限報警、高限報警、故障),90dB |
| 安裝方式 | 壁掛 |
| 工作溫度 | -10~50℃ |
| 工作濕度 | <95%RH 無凝露 |
| 滿負載 | 16點多線 |
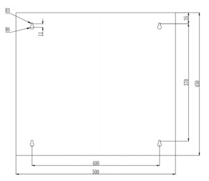
三、SL-M710可燃氣體報警控制器安裝及尺寸圖

SL-M710可燃氣體報警控制器安裝及尺寸圖
四、SL-M710可燃氣體報警控制器端子接線圖
1、兩路電流環控單元上排端子
| 端子號 | 36 | 35 | 34 | 33 | 32 | 31 |
| 端子代碼 | Can- | Can+ | V- | V+ | PNC | PC |
| 功能說明 | CAN通訊 | CAN通訊 | 供電24V | 供電24V | 故障(復位)輸出 | 故障(復位)輸出 |
| 端子號 | 30 | 29 | 28 | 27 | 26 | 25 |
| 端子代碼 | NC2 | C2 | NO2 | NC1 | C1 | NO1 |
| 功能說明 | 2路報警輸出2 | 2路報警輸出2 | 2路報警輸出2 | 2路報警輸出1 | 2路報警輸出1 | 2路報警輸出1 |
| 端子號 | 24 | 23 | 22 | 21 | 20 | 19 |
| 端子代碼 | NC2 | C2 | NO2 | NC1 | C1 | NO1 |
| 功能說明 | 1路報警輸出2 | 1路報警輸出2 | 1路報警輸出2 | 1路報警輸出1 | 1路報警輸出1 | 1路報警輸出1 |
2、兩路電流環控單元下排端子
| 端子號 | 1 | 2 | 3 | 4 | 5 | 6 |
| 端子代碼 | + | S | - | KGND | OS+ | OS- |
| 功能說明 | 1路探測器 | 1路探測器 | 1路探測器 | 大地 | 1路電流輸出(隔離) | 1路電流輸出(隔離) |
| 端子號 | 7 | 8 | 9 | 10 | 11 | 12 |
| 端子代碼 | + | S | - | KGND | OS+ | OS- |
| 功能說明 | 2路探測器 | 2路探測器 | 2路探測器 | 大地 | 2路電流輸出(隔離) | 2路電流輸出(隔離) |
| 端子號 | 13 | 14 | 15 | 16 | 17 | 18 |
| 端子代碼 | RS+ | RS- | V+ | V- | Can+ | Can- |
| 功能說明 | RS485通訊 | RS485通訊 | 供電24V | 供電24V | CAN通訊 | CAN通訊 |
五、SL-M710可燃氣體報警控制器外形尺寸圖

SL-M710可燃氣體報警控制器外形尺寸圖








